Eind 2016 zoeken Riley van Loo (30) en João van den Heuvel (30) een nieuwe woning. Ze komen terecht op het schip de Maria Aagje, aan de Binnenkant in Amsterdam. Ze huren de 18 meter lange knusse oude tjalk, met de bedoeling op den duur een woning op de wal te kopen. Maar met de huizengekte is dat nog niet zo snel gepiept – het plan wordt omgegooid. In 2025 mochten we binnenkijken op hun verbouwde Oostzeetjalk ‘Ouders Zorg’.
Door: Renate Meijer Foto’s: Tom Bremer Illustratie: Auke Herrema
‘We hebben best veel woningen bekeken, maar telkens was het net niet wat we wilden of we kwamen er niet tussen,’ vertelt João. ‘Ook voelden we steeds sterker dat we eigenlijk helemaal niet weg wilden van het water midden in Amsterdam. De Maria Aagje was met 35 vierkante meter weliswaar klein, maar altijd een plek van gezelligheid met vrienden, borrels en feestjes. Het idee van een appartement benauwde ons. Riley is geboren op een ark en had altijd al de wens om weer op het water te wonen. Daarom gaven we de huizenjacht na een tijdje op.’
ONVERWACHTE KANS
Tot dat João toevallig op een avond op Funda kijkt en de (veel grotere!) Oostzeetjalk ‘Ouders Zorg’ van 5 x 25 meter uit 1896 van de buurman te koop ziet staan.
‘Het schip had veel onderhoud nodig en het interieur was nog in traditionele stijl, maar we waren meteen enthousiast. Hoeveel werk er in de upgrade zou gaan zitten, wisten we toen nog niet,’ lacht Riley. Gezien de historische waarde van het schip en de ligging direct naast Amrath Hotel (het oude VOC-gebouw) willen ze het schip absoluut renoveren. ‘We gingen ervoor!’
EXTRA DUITEN
Omdat Riley een eigen bedrijf heeft, is de financiering niet eenvoudig.
‘We namen een hypotheekadviseur in de arm en bezochten werven om inzicht te krijgen in de kosten voor het staalwerk. Gelukkig konden we leunen op de ervaring van Rileys vader René, die een eigen stand- en interieurbouwbedrijf heeft gehad en talloze verbouwingen heeft gedaan. Hij heeft ook het bouwproces begeleid. Toen we genoeg inzicht hadden om een bod uit te brengen, waren er ineens meer gegadigden. Daarom hebben we wat extra duiten in het zakje gedaan en geboden wat we voor onze droom over hadden. En toen: bingo!’
De woonkamer en keuken als één grote ruimte, met aan één zijde een doorgang naar zowel het voor- als het achteronder. Het timmerwerk volgt alle lijnen van het schip. Er is veel gebruikgemaakt van indirecte verlichting, wat zorgt voor een ruimtelijk gevoel en een luxe uitstraling. Barnwood als plafondmateriaal: een knipoog naar de traditionele luikenkap.
De roef als extra woonkamer, met een U-bank, bartafel, dressoir met tv-lift en een grote koekoek voor het daklicht. Omdat de U-bank hol is, kon er daaronder, in de doorgang van het ruim naar het achteronder, een toilet met stahoogte worden gecreëerd.
VERBOUWING
Na de overdracht gaan ze direct aan de slag. Op de Museumwerf in Vreeswijk starten ze met slopen en na drie weken gaat het schip de helling op voor al het staalwerk. Uitgangspunt: de historische kenmerken aan de buitenzijde zoveel mogelijk in ere herstellen.
‘We hebben onder andere het Engelse stuurhuis, het roerblad, verschillende koekoeken, het stuurwiel, de potdeksel en de roef gerestaureerd,’ legt Riley uit. ‘Omdat we meer lichtinval wilden, hebben we een omgevingsvergunning aangevraagd voor een nieuw plaatstalen dak met dakramen, ramen in de den, patrijspoorten, het vernieuwen van de roef en een railing rondom voor meer veiligheid.’
Doordacht ontwerp: een nis in het toilet dankzij ruimte uit de voormalige machinekamer. De wasbak is net als het keukenblad en de wastafel in de badkamer gemaakt van blokkwartsiet.
WHAT’S IN A NAME
Om optimaal gebruik te maken van de ruimte in het schip, wordt het interieur volledig op maat gemaakt.
‘We hadden natuurlijk veel geluk met een vader als interieurbouwer,’ vervolgt Riley. ‘De naam van het schip, Ouders Zorg, hebben we trouwens behouden. Het kan ‘zorgen voor je ouders’ of ‘een zorg voor je ouders’ betekenen. Onze buurman denkt het tweede, omdat schippers in de periode dat het schip is gebouwd volgens hem in het algemeen een wat sobere levensstijl hadden en pessimistisch waren. Hoe het ook zij, wij vonden het leuk de naam in ere te houden.’
De keuken van blauwstaal met een vlam brengt het staal van het schip terug in het interieur. De vlam ontstaat door er met een grote wals onder grote hitte overheen te gaan.
Traditionele houten dakramen (ook hier triple glas) met elektrische bediening, verduistering en zonwering. De dakramen zijn uitgelijnd met de ramen in de den en de patrijspoorten. Dit zorgt voor ritme, rust, veel daglicht en een mooi uitzicht naar buiten.
Doorkijkje naar de gang richting de boeg, met rechts de badkamer. De deuren in de gang zijn uitgevoerd met magnetische contacten en blinde scharnieren.
De slaapkamer in het vooronder heeft een wastafeltje met koffiemachine. Het dakluik biedt een mooi uitzicht en dient ook als vluchtluik bij brand.
Net als in de andere ruimtes worden de plinten van de kasten geaccentueerd met een subtiele lichtlijn van ledstrips.
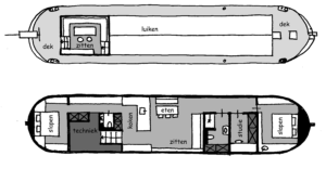
Plattegrond
Slim ruimtegebruik: een kast met schuifdeuren voor de droger en wasmachine.
DE MOOISTE GRACHT
‘Na ongeveer een jaar op de helling was het schip klaar voor de afbouw. En inmiddels wonen we er alweer een jaar,’ besluit João. ‘Onze favoriete plek is de roef. Daar kunnen we heerlijk praten, borrelen en tv kijken. Aan de ene kant zie je het Amrath Hotel – het oude VOC-gebouw – aan de andere kant kijken we uit over, wat ons betreft, de mooiste gracht van Amsterdam. We zitten midden in de binnenstad, maar net op het stukje waar wij wonen, ervaar je een oase van rust. Het uitgangspunt was: we doen het maar één keer goed. Dat is volgens ons wel gelukt.’






